Via Quisisana "Villa Lucia"

Castellammare di Stabia

670.000
/mese
Descrizione

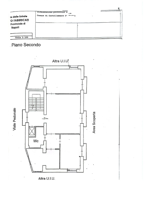
Scopri un'opportunità unica di vivere in una delle residenze storiche più affascinanti di Castellammare di Stabia: Villa Lucia. Immersa in un contesto di grande valore architettonico e circondata da splendidi giardini botanici, questa villa è testimone di un'epoca passata e offre un'atmosfera senza tempo. Un immobile che non è solo una casa, ma un viaggio nella storia e nella cultura locale. Caratteristiche dell'Appartamento: Situato al secondo piano, raggiungibile comodamente tramite ascensore, questo spazioso appartamento di 100 mq è stato progettato per offrire il massimo del comfort e della funzionalità. Ampia Zona Giorno: L’ingresso si apre su un luminoso salone caratterizzato da ampie finestre che affacciano su un balcone panoramico, ideale per godere delle incantevoli viste circostanti e dei tramonti mozzafiato. Angolo Cottura con Tinello: La cucina è dotata di un angolo cottura moderno, collegato a un tinello accogliente, perfetto per cene in famiglia e momenti di convivialità. Camere da Letto: L'appartamento offre una camera matrimoniale spaziosa, anch'essa con accesso a un balcone panoramico, e una cameretta ideale per bambini o ospiti, garantendo privacy e tranquillità. Bagno: Il bagno è in buono stato, perfetto per soddisfare le esigenze quotidiane. Comodità Aggiuntive: Non è solo l'interno a sorprendere, ma anche le comodità esterne. Inclusi nella proprietà, troverete 2 posti auto di esclusiva pertinenza, un vero e proprio lusso in una zona residenziale di grande valore. Perché Scegliere Questo Appartamento: Vivere in questo appartamento significa immergersi nella storia e nella bellezza di Castellammare di Stabia. Ogni angolo di Villa Lucia racconta storie affascinanti, mentre il panorama circostante regala tranquillità e ispirazione. La posizione strategica consente di raggiungere facilmente il centro città, le spiagge e i principali servizi. Non perdere l'occasione di diventare il proprietario di un pezzo di storia. Contattaci per una visita e lasciati conquistare da questa straordinaria residenza. La tua nuova vita a Villa Lucia ti aspetta!

Dettagli
Annuncio:
Appartamento
Tipologia:
Appartamento
Stato:
Buono
Condizione:
Libero al Rogito
Camere da Letto:
2
Soggiorno:
1
Cucina:
1
Ingressi:
1
Posto Auto:
2
Box Auto:
Bagni:
1
Metratura:
100
Finestre:
5
Balconi:
3
Ascensore: SI
Classe Energetica:
F
Esposizione:
- Su strada
- Interna
- Doppia
- Singola
- Tripla
- Panoramica
Riscaldamento:
- Autonomo
- Predisposizione
- Assente
- Centralizzato
- Climatizzato
Video Tour
Planimetria
Galleria Fotografica
Location

Richiedi una consulenza gratuita

Il sito utilizza Cookie per garantire un'esperienza ottimale. Cliccando su "accetta" ne acconsenti l'uso